Aperçu du Projet
Conception et réalisation du lotissement Éco Cap, intégrant des principes écologiques et un habitat de qualité pour ses habitants.
Le Défi
Concevoir un projet résidentiel durable alliant respect de l'environnement, confort des habitants et intégration harmonieuse dans le paysage.
Notre Solution
Optimise les coûts d'exploitation et respecte les normes environnementales, tout en créant des espaces sains et modulables pour les occupants.
Galerie du Projet




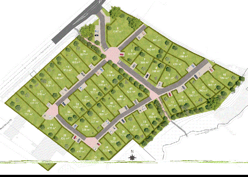
Détails du Projet
ClientPrivé
LieuAgadir, Maroc
Année2025
Surface7 580 m²
Durée18 mois
Caractéristiques Clés
Développement Écologique
Normes Environnementales
Espaces Modulables
Intégration Paysagère
Efficacité Énergétique
Habitat Durable

